by John Glidden | Feb. 25, 2021
VALLEJO – The city’s planning commission will hold a public hearing Monday to decide on a proposed development of 132 apartment units on nearly five acres of vacant land along Sonoma Boulevard and Magazine Street in South Vallejo.
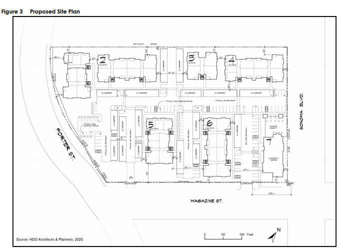
The project applicant, Randall Harris HDO Architects, is proposing to construct six three-story apartment buildings, with a two-story community center that would offer several amenities for residents including a gym, leasing office, and media room.
The proposal, known as the Oakwood Apartments, includes six studios, 72 one-bedroom units, and 54 two-bedroom units, and 233 parking spaces.
According to an analysis done by a third-party, the project is not subject to review under the California Environmental Quality Act (CEQA) as the project is considered an infill development.
Approval of the project would not result in any significant water, air, noise or traffic impacts, staff said.
The project is located between the Sea Breeze apartments, Sonoma Boulevard/Highway 29, the Norman C. King South Vallejo Community Center, Patterson Elementary School, a commercial strip center, and a gas station.
Commissioners will be asked to approve several permits and documents connected to the project, including a major use permit for the construction of nine or more dwelling units, a site development permit for new building and site improvements, and a minor exception permit for the reduction of 15 parking spaces to 233 stalls, the reduction of a landscape buffer by 1,342 square feet, and increase fence height from four to five feet.

The commission will also be asked to approve a landscape report and the environmental document completed in lieu of a CEQA review.
The Vallejo Planning Commission will meet at 7 p.m., Monday via teleconference.
The public may provide comments during the Planning Commission meeting via Zoom
(https://zoomregular.cityofvallejo.net), or via phone, by dialing (669) 900-6833, enter meeting id: 914 0075 0676#
The meeting can be viewed by watching Vallejo local channel 28, streaming from the city website: http://www.cityofvallejo.net/Streaming, or by joining the Zoom webinar: https://zoomregular.cityofvallejo.net,
JohnGlidden.com is an independent news blog covering the cities of Vallejo and Benicia. If you appreciate the journalism on this site, please consider making a contribution.
Will these be affordable apartments? When and where can I apply for a two bedroom? Thanks
LikeLike