by John Glidden | glid24@protonmail.com | July 27, 2025
VALLEJO – A new 51-unit housing subdivision proposed for the Glen Cove neighborhood cleared its first hurdle earlier this month after the city’s Design Review Board recommended the project move forward to the Planning Commission.
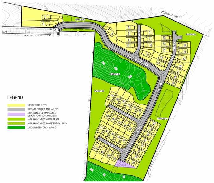
During a July 10 meeting, the Design Review Board got a look at the project called “Vista Cove,” which would include 51 detached single-family homes on 20 acres of undeveloped land surrounded by Interstate-780, the California Highway Patrol Office along Benicia Road, and the Benicia State Park. The project is located near Shady Lane and Wildflower Avenue.
Several community members, along with board members, expressed concerns about the project. However, city staff continually clarified that the review board’s role was to look at the design elements, and landscape design of the project only.
“These houses (will) not to solve the housing crisis in Vallejo,” said Carol Mckenzie, of Glen Cove, addressing the review board.
McKenzie highlighted the potential danger of having a one way in, one way out road plan along Shady Lane and Wildflower Avenue, questioning what happens to the entire area if there is an issue, like a wildfire.

She also argued the new homes would impact Benicia State Park.
“The tranquility of the park is going to be ruined,” she told the review board.
Fellow resident Christine Gipson expressed concern with the sizing of the lots, stating that the larger lots, proposed narrow streets, “don’t fit the aesthetic of the community I live in.”
Adam Smith, representing the applicant Sancerra Vista Cove, LLC, said the lot sizes provided in the staff report include the garages. Smith clarified that the living spaces will range between 2,050 to 2,618 square feet as opposed to the 2,491 to 3,118 square feet mentioned in the staff report.
Four different floor plans “in modern farmhouse architectural variation” will be offered for sale. The base floor plan will include three bedrooms, and two and half bathrooms. The second model would add an additional bedroom and bathroom, while the third and fourth models would include an additional bedroom and bathroom plus a loft. Each home will have an attached two-car garage and two uncovered parking spaces withing each driveway.
Later in the meeting, Smith said the applicant had the community in mind while drafting the proposed project.
“We’ve taken a lot of great care to make sure this is consistent with the charter of the neighboring community,” he said, stressing that 25 homes can be placed per acre, but the company is only looking to add 51 units over 10 acres. “We are literally doing the minimum that we should be doing for this site. We are doing that because we believe that what we are doing is consistent and in line with the character of the surrounding community.”
The homes will be constructed on about 10 acres of land with the remaining being reserved for open space.
Design Review Board member Jamiah Adams gave a brief scare to Board Chair Matthew Kennedy, and Laura Zagaroli, the city staff attorney assigned to the board, when she declared she was a Glen Cove resident.
“I also live in Glen Cove so I don’t know if I can be unbiased in what I say,” Adams said, causing Zagaroli to question how closely she lives to the proposed project. Adams clarified that she lives more than 2 miles away from the subdivision.
Adams asked about the impact of the proposed Rollingwood Subdivision that would add 130 homes on the site of four unused little league fields in the area.
She also spoke about possibly delaying the night’s vote until the Planning Commission weighed in on the project.
“I want more of the public to be able to have their opportunity to speak up,” Adams added.
Kennedy disagreed, stating that it was important for the review board to make a recommendation during that meeting.
“I’m loath to continue it because I think the intended sequence of events is that we make a recommendation to the Planning Commission and if we want our recommendation to have anything to do with anything we make it,” he explained.
Adams, Kennedy, and fellow board member Michael Eli eventually voted to recommend that the Planning Commission sign-off on the design elements, and landscape review of the project.
An arborist report found that 69 trees on the current site need to be removed due to their condition. Cesar Orozco, planning manager, and project lead, said that 47 of those trees will be replaced via a ratio of three new trees for each existing tree removed for a total of 141 trees being planted in the area.
He also said the city is working on a draft environmental impact report which will be released to the public.
The project will move on to the Planning Commission for regular review, however, since the applicant is requesting a rezoning of the site from Residential Low Density (RLD) and Residential Medium Density (RMD) to a Planned Development (PD) zoning district, the Vallejo City Council will make a final decision on the proposed subdivision, Orozco said.
It wasn’t immediately known when the Planning Commission and Vallejo City Council will review the project.
One thought on “Vista Cove subdivision moves forward”