by John Glidden | glid24@protonmail.com | December 20, 2025
VALLEJO – As expected, the city’s Planning Commission agreed on Monday, December 15, to push back review of a proposed 51-unit East Vallejo housing subdivision until January.
City staff requested the month delay as they seek more time to complete several conditions of approval.
“The reason for the continuance is because we are still finalizing the conditions of approval from Vallejo Flood and Wastewater, and also from public works,” explained Cesar Orozco, planning manager for current development. “And also (it) gives us additional time to respond to comments we did receive from the subsequent mitigated negative declaration for the environmental document.”
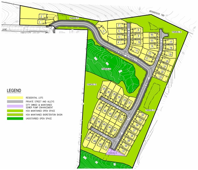
Officially called “Vista Cove,” the proposed project includes 51 detached single-family homes on 20 acres of undeveloped land surrounded by Interstate-780, the California Highway Patrol Office along Benicia Road, and the Benicia State Park. The project is located near Shady Lane and Wildflower Avenue in the Glen Cove neighborhood.
The city released the nearly 250-page subsequent mitigated negative declaration in November finding that while the project could have significant effects on the environment, the impacts will not be considered significant due to revisions by the project applicant to mitigate the effects.
Under the subsequent mitigated negative declaration, it was discovered that a potentially significant impact of greenhouse gas emissions would take place during construction.
“It is estimated that the construction of the proposed project would generate approximately 306.0 metric tons (MT) CO2e during construction of the project,” the declaration states.
To mitigate this, construction vehicle idling would be reduced.
“This measure is implemented by the city and the Air District to ensure that GHG emissions would be less than significant. In addition, construction activities would be minimal and GHG emissions generated during construction of the proposed project would be short term in nature, lasting only for the duration of the construction period,” the declaration further states.
No other potentially significant impacts were identified.

Meanwhile, the commission vote wasn’t unanimous as Commissioner Phillip Balbuena voted against the continuance while commission chair Anthony Taylor was absent from the meeting.
The new homes would range in size from 2,494 to 2,674 square feet, with each property featuring an attached two-car garage and driveway parking, according to city staff. The development would see the construction of a new private street, sidewalks, curbs and gutters, a series of private alleys, street lighting, and landscaping.
Vista Cove cleared its first hurdle last July after the city’s Design Review Board recommended the project move forward to the Planning Commission. The review board was tasked with only looking at the design elements, and landscape design of the project. However, this didn’t stop some members of the design board, along with members of the public, expressing concerns about the project’s impact to the neighborhood.
“These houses (will) not to solve the housing crisis in Vallejo,” said Carol Mckenzie, of Glen Cove, addressing the review board during the July 10 meeting.
McKenzie highlighted the potential danger of having a one way in, one way out road plan along Shady Lane and Wildflower Avenue, questioning what happens to the entire area if there is a wildfire. Concerns were also expressed about the possible impacts the project could cause the nearby Benicia State Park.
The homes will be constructed on about 10 acres of land with the remaining being reserved for open space.
An arborist report, presented during the July Design Review Board meeting found that 69 trees on the current site need to be removed due to their condition. Orozco said during the same meeting that 47 of those trees will be replaced via a ratio of three new trees for each existing tree removed for a total of 141 trees being planted in the area.
While the Planning Commission is the final stop for most development projects, the Vista Cove development will go before the Vallejo City Council as the applicant, Sancerra Vista Cove, LLC, is seeking to rezone the site to a Planned Development (PD) district.
Last month, the Planning Commission approved a new housing development which will see the construction of 130 single-family homes on the site of four abandoned little league baseball fields in East Vallejo. The 130 homes are in the same general area as the proposed Vista Cove.
The Planning Commission is scheduled to review the Vista Cove project on Wednesday, January 21, 2026. The commission normally meets on the 1st and 3rd Mondays of the month. However, the meeting was pushed back two days due to the Martin Luther King Jr. Day holiday set for Monday, January 19, 2026.
I think you meant “some members” here
However, this didn’t stop come members of the design board, along with members of the public,
LikeLike
Thanks, Peter! – John
LikeLike